Projektauswahl
Wohn- und Gewerbeanlage
in Mönsheim
Projektdaten:
Planung: 2017 bis 2019
Bauzeit: in der Ausführung
Fertigstellung geplant Dez. 2020
Brutto-Rauminhalt: ca. 16.000 m³
Baukosten: ca. 6.Mio € netto
Sockelgeschoss: Gewerbenutzungen und Tiefgarage
Erdgeschoss:
Diakoniestation, Tagespflege
betreute Wohngruppen
Obergeschoss 1 und 2:
24 Wohneinheiten
Wohnen mit Service
Wohn- und Gewerbeanlage
in Mönsheim
Projektdaten:
Planung: 2017 bis 2019
Bauzeit: in der Ausführung
Fertigstellung geplant April 2020
Brutto-Rauminhalt: ca. 16.000 m³
Baukosten: ca. 6.Mio € netto
Sockelgeschoss:
Gewerbenutzungen und Tiefgarage
Erdgeschoss:
Diakoniestation, Tagespflege
betreute Wohngruppen
Obergeschoss 1 und 2:
24 Wohneinheiten
Wohnen mit Service
Wohn- und Gewerbeanlage
in Mönsheim
Projektdaten:
Planung: 2017 bis 2019
Bauzeit: in der Ausführung
Fertigstellung geplant Dez. 2020
Brutto-Rauminhalt: ca. 16.000 m³
Baukosten: ca. 6.Mio € netto
Sockelgeschoss: Gewerbenutzungen und Tiefgarage
Erdgeschoss:
Diakoniestation, Tagespflege
betreute Wohngruppen
Obergeschoss 1 und 2:
24 Wohneinheiten
Wohnen mit Service
Umbau und Sanierung Verbrauchermarkt
Eppingen
Projektdaten:
Bauzeit: April - November 2017
Nettogrundrissfläche: ca. 4.500 m²
Baukosten: ca. 13 Mio € netto
Totalentkernung aufgrund Setzungen der Bodenplatte
Einbringung von 200 Ramm-Gußpfählen zur Gründung der neuen Bodenplatte
Modernisierung und Erweiterung nach aktuellem Firmen CI
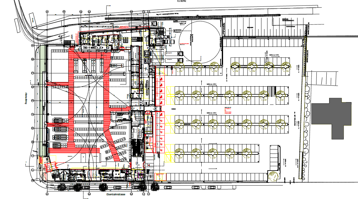
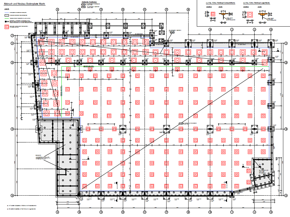
Umbau und Sanierung Verbrauchermarkt
Eppingen
Projektdaten:
Bauzeit: April - November 2017
Nettogrundrissfläche: ca. 4.500 m²
Baukosten: ca. 13 Mio € netto
Totalentkernung aufgrund Setzungen der Bodenplatte
Einbringung von 200 Ramm-Gußpfählen zur Gründung der neuen Bodenplatte
Modernisierung und Erweiterung nach aktuellem Firmen CI
Neubau Einfamilienhaus
in Pforzheim
Projektdaten:
Bauzeit: September 2009-August 2010
Planung und Ausführung:
as Planungsgesellschaft mbH
Jung Voigt Webel
Projektleitung: Ulrich Webel
Nettogrundrissfläche: ca. 285 m² Baukosten KGR 300-700 : ca. 0,6 Mio €
Haustechnisches Konzept:
Wärmepumpe mit Pelletzusatzheizung für Spitzenabfangung im Winter Kontrollierte Wohnraumlüftungsanlage
Neubau Einfamilienhaus
in Pforzheim
Projektdaten:
Bauzeit: September 2009-August 2010
Planung und Ausführung:
as Planungsgesellschaft mbH
Jung Voigt Webel
Projektleitung: Ulrich Webel
Nettogrundrissfläche: ca. 285 m²
Baukosten KGR 300-700 : ca. 0,6 Mio €
Haustechnisches Konzept:
Wärmepumpe mit Pelletzusatzheizung für Spitzenabfangung im Winter
Kontrollierte Wohnraumlüftungsanlage






































